sPACESTOR & jEFFERSON gROUP

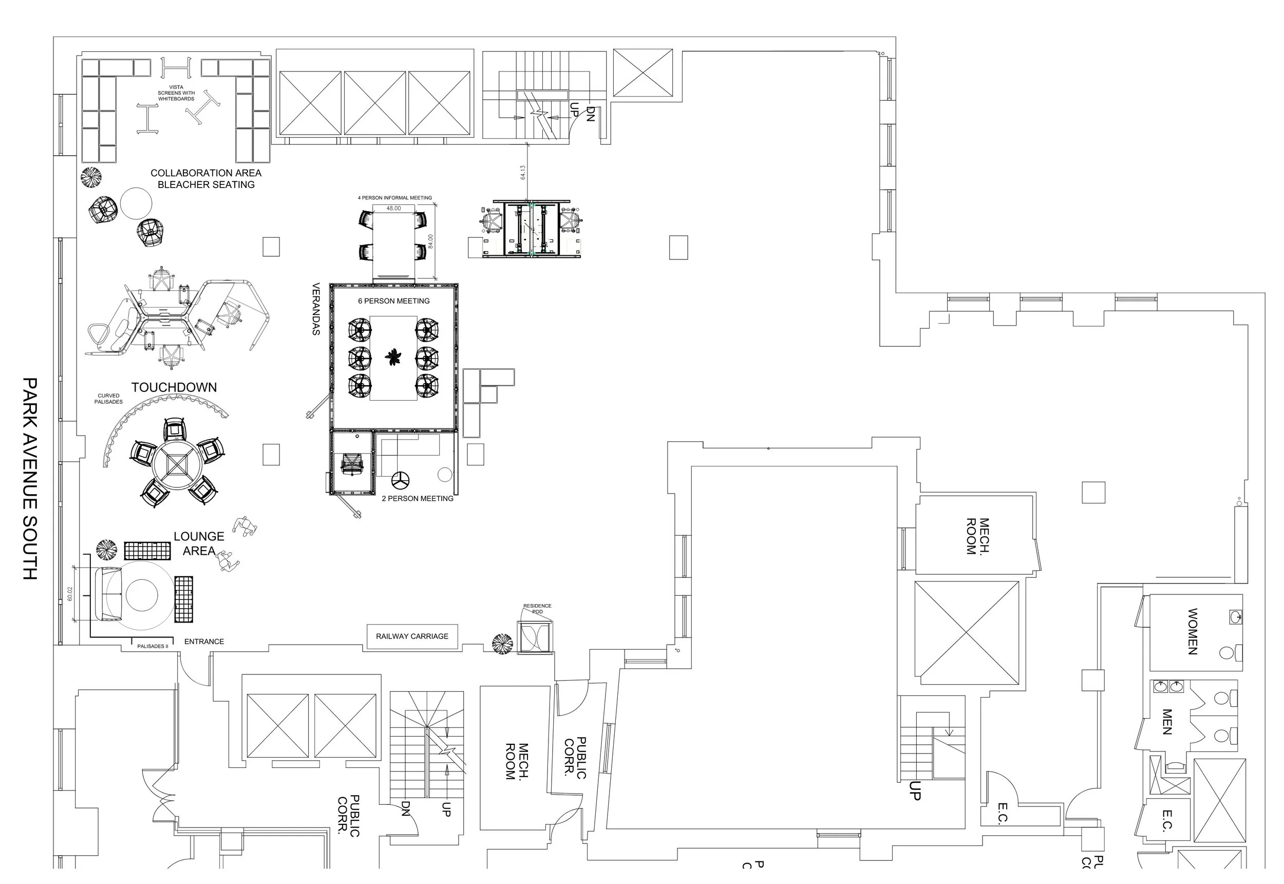
Jefferson Group had the opportunity to showcase their ancillary furniture in a collaborative space with Spacestor. I was responsible for designing eight distinct areas, ensuring a seamless integration of various furniture manufacturers' pieces while selecting finishes that harmonized with the overall aesthetic. This required extensive research into finishes and lead times for products.

design board